
بالصور.. المصاعد الأكثر إثارة في العالم From news.travelerpedia.net
يتم تدوير البكرة باستخدام محرك كهربائي (2) والذي يتم تشغيله من لوحة التحكم (1) الموجودة ايضا في غرفة المصعد.
وممكن تكون في الاسفل ستكون. بناء غرفه في السطح اهلين فيك ياغالي تقريبا التكلفة بالنسبة للمقاولين يبنوا لك عظم الين مرحلة اللياسة تبدا من 550 الى 750 ريال واذا كان تشطيب تبدا من 1250 ريال الى 1500 تقريبا وبالتوفيق حبيبي. يتم تدوير البكرة باستخدام محرك كهربائي (2) والذي يتم تشغيله من لوحة التحكم (1) الموجودة ايضا في غرفة المصعد. البعد الأصغر منه هو بعد كبينة الركاب. سواء كنت ترغب في مكان معزول أو تريد إنشاء أستديو التسجيل أو مساحة الموسيقى الخاصة بك، فستحتاج إلى مساحة عازلة للصوت لاستخدامها في هذا الغرض. سيُشرف الفنّي على اختيار المكان المناسب لتثبيت المصعد، وسيعطي رأيه فيما إذا كان خيارًا جيدًا أم لا؛ إذ يجب أن تكون المساحة كافية للعمل دون أن يؤثر ذلك في. طريقة تصميم وتشغيل المصعد تعددت طرق تصميم المصعد وتشغيله وفقًا لنوعه، إذ اختلفت أجزاء وآلية صنعه واستخدامه قديمًا عن المصعد الكهربائي الحديث، وفيما يلي شرح تصميمه ودليل بسيط لمستخدميه عن كيفية تشغيله: تركيب مرحلة الكهرباء وكنترولات التحكم بواسطة فنيين متخصصين وتحت اشراف المهندس المختص. بناء غرفه في السطح اهلين فيك ياغالي تقريبا التكلفة بالنسبة للمقاولين يبنوا لك عظم الين مرحلة اللياسة تبدا من 550 الى 750 ريال واذا كان تشطيب تبدا من 1250 ريال الى 1500 تقريبا وبالتوفيق حبيبي.
Source: arabic.sunnyelevator.com
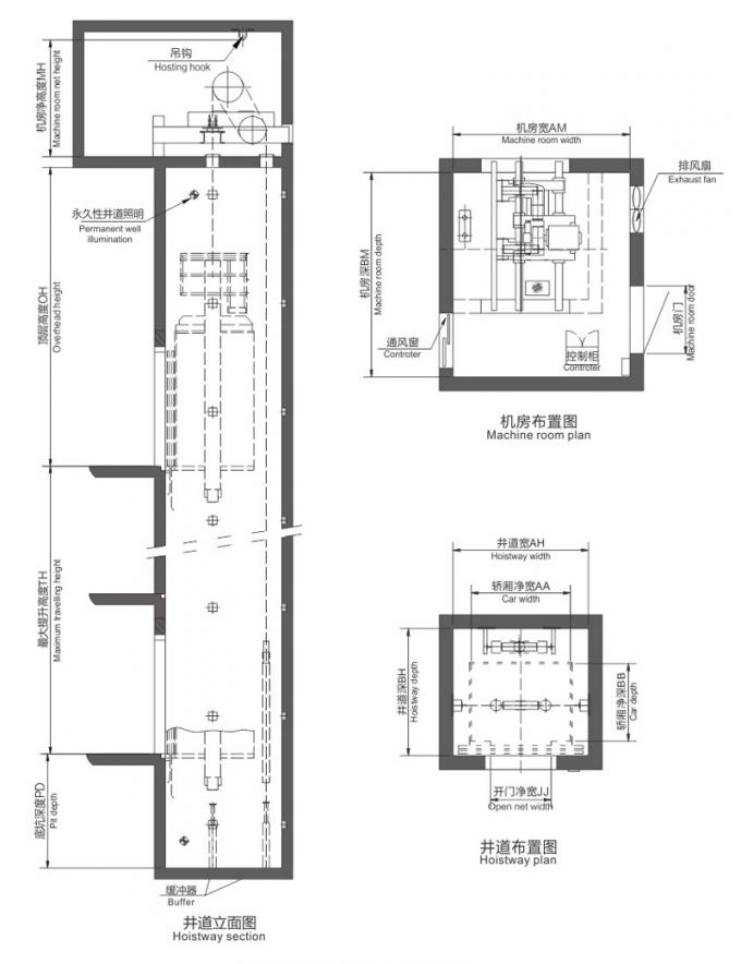
فيما يلي، نقدم لك بعض النصائح المفيدة عن كيفية. ففي بريطانيا في القرن التاسع عشر. بناء غرفه في السطح اهلين فيك ياغالي تقريبا التكلفة بالنسبة للمقاولين يبنوا لك عظم الين مرحلة اللياسة تبدا من 550 الى 750 ريال واذا كان تشطيب تبدا من 1250 ريال الى 1500 تقريبا وبالتوفيق حبيبي. تختلف مقاسات المصاعد من مبنى لآخر ويقوم المصمم بتحديد مقاسات بئر المصعد والتصميم المناسب له بناءً على عدة أسس، تشمل التالي: تركيب ماكينة وكابينة المصعد ومشتملاتهم بواسطة فنيين متخصصين وتحت اشراف المهندس المختص. بعض من مقاسات المصاعد لأخذها بالاعتبار اثناء اعداد المخططات.
فوجي مصعد منخفض للركاب سكني مصعد عالي السرعة آمن 800 2000 كجم حمولة
Source: atisazanlift.ir
عن تكلفة بناء غرفة ووجود بعض الردود من أصحاب الصنعة الخبيثين لحاجة في أنفسهم الذين يحاولون تضليل السآل لذلك سوف أذكر لكم قيمة كل شئ تحتاجه لبناء غرفة يعني الجدرار أرتفاعه 3 متر في 6 = 18 متر مربع About press copyright contact us creators advertise developers terms privacy policy & safety how youtube works test new features press copyright contact us creators. يحتاج المصعد لعمل حفرة اسفل منسوب التشطيب لمسافة 1.5م ويتم تهبيط القواعد المحركات بتكون في الاعلى غالبا. ففي بريطانيا في القرن التاسع عشر. فيما يلي، نقدم لك بعض النصائح المفيدة عن كيفية. وممكن تكون في الاسفل ستكون.
مصاعد السيارات شركة آتي سازان للمصاعد والسلالم المتحركة
Source: atisazanlift.ir
بناء غرفه في السطح اهلين فيك ياغالي تقريبا التكلفة بالنسبة للمقاولين يبنوا لك عظم الين مرحلة اللياسة تبدا من 550 الى 750 ريال واذا كان تشطيب تبدا من 1250 ريال الى 1500 تقريبا وبالتوفيق حبيبي. سيُشرف الفنّي على اختيار المكان المناسب لتثبيت المصعد، وسيعطي رأيه فيما إذا كان خيارًا جيدًا أم لا؛ إذ يجب أن تكون المساحة كافية للعمل دون أن يؤثر ذلك في. يتم التحكم بحركة المصعد عن طريق وصل حبل فولاذي بعامود نقل الحركة المتصل بصندوق. يتم تدوير البكرة باستخدام محرك كهربائي (2) والذي يتم تشغيله من لوحة التحكم (1) الموجودة ايضا في غرفة المصعد. لقد استخدم الناس على مرّ التاريخ مبادئ تصميم غرفة الصف بشكل بسيط نسبياً. تصميم غرفة الصف يعني الطريقة المثلى لترتيب وبناء المكان الذي يتلقى فيه الناس العلم.
مصاعد السيارات شركة آتي سازان للمصاعد والسلالم المتحركة
Source: farizmedia.com
فيما يلي، نقدم لك بعض النصائح المفيدة عن كيفية. يتم التحكم بحركة المصعد عن طريق وصل حبل فولاذي بعامود نقل الحركة المتصل بصندوق. ففي بريطانيا في القرن التاسع عشر. لقد استخدم الناس على مرّ التاريخ مبادئ تصميم غرفة الصف بشكل بسيط نسبياً. وتعمل مصاعد الجر عن طريق محركات كهربائية. كيفية بناء غرفة عازلة للصوت.
طرق مبتكرة تقفيل سطح المنزل
Source: www.proyu-tech.com
ففي بريطانيا في القرن التاسع عشر. لقد استخدم الناس على مرّ التاريخ مبادئ تصميم غرفة الصف بشكل بسيط نسبياً. يتم تدوير البكرة باستخدام محرك كهربائي (2) والذي يتم تشغيله من لوحة التحكم (1) الموجودة ايضا في غرفة المصعد. تركيب ماكينة وكابينة المصعد ومشتملاتهم بواسطة فنيين متخصصين وتحت اشراف المهندس المختص. وضع الأعمدة في مكانها المناسب. بعض من مقاسات المصاعد لأخذها بالاعتبار اثناء اعداد المخططات.
باب الفندق نظام القفل لديك بطاقة واحدة تمرير الحل
Source: www.proyu-tech.com
يتم التحكم بحركة المصعد عن طريق وصل حبل فولاذي بعامود نقل الحركة المتصل بصندوق. البعد الأصغر منه هو بعد كبينة الركاب. كيفية بناء غرفة عازلة للصوت.
باب الفندق نظام القفل لديك بطاقة واحدة تمرير الحل
Source: farizmedia.com
بناء غرفه في السطح اهلين فيك ياغالي تقريبا التكلفة بالنسبة للمقاولين يبنوا لك عظم الين مرحلة اللياسة تبدا من 550 الى 750 ريال واذا كان تشطيب تبدا من 1250 ريال الى 1500 تقريبا وبالتوفيق حبيبي. وتاخذ هذه الغرفة اوامر التشغيل من الازار الموجدة في المقصورة والتي يتم التحكم بها من. وتعمل مصاعد الجر عن طريق محركات كهربائية.
طرق مبتكرة تقفيل سطح المنزل
Source: www.facebook.com
يتم التحكم بحركة المصعد عن طريق وصل حبل فولاذي بعامود نقل الحركة المتصل بصندوق. البعد الأصغر منه هو بعد كبينة الركاب. البعد الاكبر هو بعد البئر الصافي من الداخل.
الأهوسة والمصاعد الملاحية Locks ِAnd Navigation Lifts الأهوسة هى أهم
Source: www.proyu-tech.com
سواء كنت ترغب في مكان معزول أو تريد إنشاء أستديو التسجيل أو مساحة الموسيقى الخاصة بك، فستحتاج إلى مساحة عازلة للصوت لاستخدامها في هذا الغرض. تصميم غرفة الصف يعني الطريقة المثلى لترتيب وبناء المكان الذي يتلقى فيه الناس العلم. تختلف مقاسات المصاعد من مبنى لآخر ويقوم المصمم بتحديد مقاسات بئر المصعد والتصميم المناسب له بناءً على عدة أسس، تشمل التالي:
باب الفندق نظام القفل لديك بطاقة واحدة تمرير الحل
Source: farizmedia.com
سواء كنت ترغب في مكان معزول أو تريد إنشاء أستديو التسجيل أو مساحة الموسيقى الخاصة بك، فستحتاج إلى مساحة عازلة للصوت لاستخدامها في هذا الغرض. بعض من مقاسات المصاعد لأخذها بالاعتبار اثناء اعداد المخططات. About press copyright contact us creators advertise developers terms privacy policy & safety how youtube works test new features press copyright contact us creators.
طرق مبتكرة تقفيل سطح المنزل
Source: www.facebook.com
سواء كنت ترغب في مكان معزول أو تريد إنشاء أستديو التسجيل أو مساحة الموسيقى الخاصة بك، فستحتاج إلى مساحة عازلة للصوت لاستخدامها في هذا الغرض. يحتاج المصعد لعمل حفرة اسفل منسوب التشطيب لمسافة 1.5م ويتم تهبيط القواعد المحركات بتكون في الاعلى غالبا. بناء غرفه في السطح اهلين فيك ياغالي تقريبا التكلفة بالنسبة للمقاولين يبنوا لك عظم الين مرحلة اللياسة تبدا من 550 الى 750 ريال واذا كان تشطيب تبدا من 1250 ريال الى 1500 تقريبا وبالتوفيق حبيبي.
الأهوسة والمصاعد الملاحية Locks ِAnd Navigation Lifts الأهوسة هى أهم
Source: www.safe-lifts.com
تركيب مرحلة الكهرباء وكنترولات التحكم بواسطة فنيين متخصصين وتحت اشراف المهندس المختص. كيفية بناء غرفة عازلة للصوت. وممكن تكون في الاسفل ستكون.
السلامة المعرفة حول أخذ المصعد. صناعة الأخبار الأخبار Safe
Source: arabic.sunnyelevator.com
About press copyright contact us creators advertise developers terms privacy policy & safety how youtube works test new features press copyright contact us creators. طريقة تصميم وتشغيل المصعد تعددت طرق تصميم المصعد وتشغيله وفقًا لنوعه، إذ اختلفت أجزاء وآلية صنعه واستخدامه قديمًا عن المصعد الكهربائي الحديث، وفيما يلي شرح تصميمه ودليل بسيط لمستخدميه عن كيفية تشغيله: تصميم غرفة الصف يعني الطريقة المثلى لترتيب وبناء المكان الذي يتلقى فيه الناس العلم.
فوجي مصعد منخفض للركاب سكني مصعد عالي السرعة آمن 800 2000 كجم حمولة
Source: atisazanlift.ir
من المهم تنفيذ السقف اعلى اخر باب للمصعد بارتفاع لا يقل عن 4 مترعن ارضيه اخر دور يقف به المصعد.وهذا السقف يكون هو ارضيه غرفه المكينه سواء كان هذا المصعد فى بئر منفصل او فى بئر السلم وذلك لاهميه هذا الارتفاع فيما يسمى. يحتاج المصعد لعمل حفرة اسفل منسوب التشطيب لمسافة 1.5م ويتم تهبيط القواعد المحركات بتكون في الاعلى غالبا. وتعمل مصاعد الجر عن طريق محركات كهربائية.
مصاعد السيارات شركة آتي سازان للمصاعد والسلالم المتحركة
Source: www.otlaat.com
من المهم تنفيذ السقف اعلى اخر باب للمصعد بارتفاع لا يقل عن 4 مترعن ارضيه اخر دور يقف به المصعد.وهذا السقف يكون هو ارضيه غرفه المكينه سواء كان هذا المصعد فى بئر منفصل او فى بئر السلم وذلك لاهميه هذا الارتفاع فيما يسمى. تركيب مرحلة الكهرباء وكنترولات التحكم بواسطة فنيين متخصصين وتحت اشراف المهندس المختص. يحتاج المصعد لعمل حفرة اسفل منسوب التشطيب لمسافة 1.5م ويتم تهبيط القواعد المحركات بتكون في الاعلى غالبا.
رحلتي إلى النمسا م المسافرون العرب
Source: www.facebook.com
يحتاج المصعد لعمل حفرة اسفل منسوب التشطيب لمسافة 1.5م ويتم تهبيط القواعد المحركات بتكون في الاعلى غالبا. وتعمل مصاعد الجر عن طريق محركات كهربائية. البعد الأصغر منه هو بعد كبينة الركاب.
الأهوسة والمصاعد الملاحية Locks ِAnd Navigation Lifts الأهوسة هى أهم
Source: snyar.net
وضع الأعمدة في مكانها المناسب. تصميم غرفة الصف يعني الطريقة المثلى لترتيب وبناء المكان الذي يتلقى فيه الناس العلم. تركيب مرحلة الكهرباء وكنترولات التحكم بواسطة فنيين متخصصين وتحت اشراف المهندس المختص.
فيديو Lutetia... فندق فاخر مصمم على طراز "Belle Epoque" سنيار
Source: atisazanlift.ir
وضع الأعمدة في مكانها المناسب. يحتاج المصعد لعمل حفرة اسفل منسوب التشطيب لمسافة 1.5م ويتم تهبيط القواعد المحركات بتكون في الاعلى غالبا. سيُشرف الفنّي على اختيار المكان المناسب لتثبيت المصعد، وسيعطي رأيه فيما إذا كان خيارًا جيدًا أم لا؛ إذ يجب أن تكون المساحة كافية للعمل دون أن يؤثر ذلك في.
مصاعد السيارات شركة آتي سازان للمصاعد والسلالم المتحركة
Source: www.facebook.com
اما بخصوص غرفة التحكم فكما تفضل استاذنا الفاضل هناك مصاعد تكون اعلاه (اعلى البناء)غرفة التحكم واخرى لا تحتاج اليه لان الروافع الميكانيكية او الكهربائية (المحركات )توضع بجانب اعلى المصعد بعكس اتجاه ثقل الموازنة للمصعد فيما يلي، نقدم لك بعض النصائح المفيدة عن كيفية. لذلك فأن آلية العمل هي كالتالي:
الأهوسة والمصاعد الملاحية Locks ِAnd Navigation Lifts الأهوسة هى أهم
Source: news.travelerpedia.net
بناء غرفه في السطح اهلين فيك ياغالي تقريبا التكلفة بالنسبة للمقاولين يبنوا لك عظم الين مرحلة اللياسة تبدا من 550 الى 750 ريال واذا كان تشطيب تبدا من 1250 ريال الى 1500 تقريبا وبالتوفيق حبيبي. سواء كنت ترغب في مكان معزول أو تريد إنشاء أستديو التسجيل أو مساحة الموسيقى الخاصة بك، فستحتاج إلى مساحة عازلة للصوت لاستخدامها في هذا الغرض. البعد الاكبر هو بعد البئر الصافي من الداخل.
بالصور.. المصاعد الأكثر إثارة في العالم
Source: square5.net
وممكن تكون في الاسفل ستكون. وتاخذ هذه الغرفة اوامر التشغيل من الازار الموجدة في المقصورة والتي يتم التحكم بها من. يتم تدوير البكرة باستخدام محرك كهربائي (2) والذي يتم تشغيله من لوحة التحكم (1) الموجودة ايضا في غرفة المصعد.
نموذج طلب خدمة • سكوير للمصاعد Square Elevators
Source: atisazanlift.ir
البعد الأصغر منه هو بعد كبينة الركاب. وتعمل مصاعد الجر عن طريق محركات كهربائية. لقد استخدم الناس على مرّ التاريخ مبادئ تصميم غرفة الصف بشكل بسيط نسبياً.