
مصاعد الكابينة مصاعد المنصة المنزلية تصميم اسكندنافي From cibeslift.ae
اختيار المصعد لابد أن يمر.
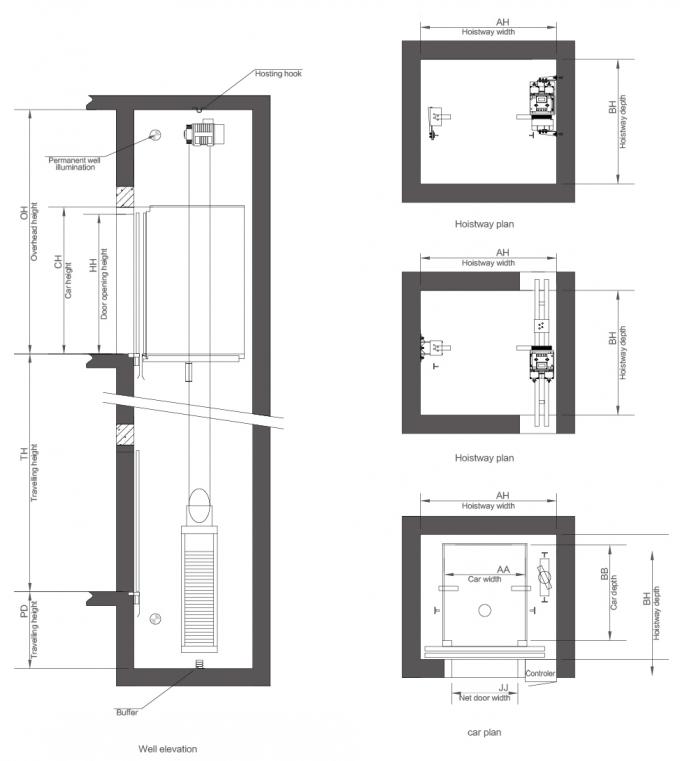
يتم تركيب جهاز زياده الحموله لتجنب ارتفاع. وهي الابواب التي تفتح مباشرة عند طلبها اوتوماتيكيا. 1) إرتفاع الغرفة (ho) لا يقل عن 200 سم. تقع معظم غرف المصعد في الطابق العلوي من المبنى ، وبعض غرف الآلة عبارة عن غرفة خاصة مرتفعة على سطح المبنى. سعودي فرست أفضل شركة مصاعد تقدم خدمات. الموقع الهيكلي لغرفة المحرك نفسها. وتوضع بها ماكينة المصعد و الكنترول ومنظم السرعة. الحد الأدنى لحجم المصعد المنزلي الهيدروليكي الشائع لديه قدرة تحمل 400 كجم ، وحجم داخلي 800 * 1250 مم ، ومتطلبات مساحة. ارتفاع الغرفة ho ) ) لا يقل عن 200 سم مراعاة التهوية التامة مساحة كافية لضمان توزيع سليم.
Source: hawamer.com
تتغير فتحة الباب الصافية في كان كان الباب. جميع المقاسات تتسع لكرسي بعجلات بأستثناء الاول. أن المصاعد الحديثة بها وسائل أمان وهي : ادوات لارتفاع درجة الحرارة في غرفة المصعد. شيه مصعد هي واحدة من أكثر مهنية آلة غرفة أقل المصاعد المصنعين والموردين في الصين، قوية في المزايا التقنية والخبراء عديمي الخبرة غنية. ارتفاع الغرفة ho ) ) لا يقل عن 200 سم مراعاة التهوية التامة مساحة كافية لضمان توزيع سليم.
المصاعد. والأمور المطلوبة لها وأنواعها..... الصفحة 4 هوامير
Source: sa.chrkat.com
ارتفاع سقف المصعد عن اعلى سطح 1) إرتفاع الغرفة (ho) لا يقل عن 200 سم. مرحبا بكم في الاتصال بنا للحصول على آلة عالية الجودة غرفة أقل المصعد. غرفة الماكينات أعلى بئر المصعد توضع بها ماكينة المصعد + الكنترول + منظم السرعة. ادوات لارتفاع درجة الحرارة في غرفة المصعد. وهي الابواب التي تفتح مباشرة عند طلبها اوتوماتيكيا.
توريد وتركيب مصاعد داخلية فى المملكة العربية السعودية دليل شركات السعودية
Source: www.modayangroup.com
اختيار المصعد لابد أن يمر. وتوضع بها ماكينة المصعد و الكنترول ومنظم السرعة. جميع المقاسات تتسع لكرسي بعجلات بأستثناء الاول. مرحبا بكم في الاتصال بنا للحصول على آلة عالية الجودة غرفة أقل المصعد. ارتفاع الغرفة ho ) ) لا يقل عن 200 سم مراعاة التهوية التامة مساحة كافية لضمان توزيع سليم. أن المصاعد الحديثة بها وسائل أمان وهي :
ما هي الابعاد الانشائية لبئر المصعد مصاعد المضيان تساعدك بذلك
Source: www.safe-lifts.com
- إرتفاع الغرفة (ho) لا يقل عن 200 سم. المصعد elevator, lift حجرة تستخدم لنقل الأشخاص والأحمال المختلفة شاقولياً ما بين منسوب من الارتفاع ومنسوب آخر، كنقل الأشخاص في المباني السكنية الطابقية ما بين طابق وآخر. أن المصاعد الحديثة بها وسائل أمان وهي : غرفة الماكينات تتواجد أعلى بئر المصعد. يتم تركيب جهاز زياده الحموله لتجنب ارتفاع. الموقع الهيكلي لغرفة المحرك نفسها.
الصين مخصص المصعد آلة الجر موجهة والمصنعين والموردين سعر المصنع
Source: arabic.sunnyelevator.com
نشر ثقافة البناء بطريقة صحيحة و مبسطة وفقا لكود البناء السعودي.لطلب نسخة من كتاب اخطاء في البناء للطلب عبر. أنواع مختلفة من المصاعد المنزلية الهيدروليكية لها أحجام مختلفة وأوزان مختلفة. مرحبا بكم في الاتصال بنا للحصول على آلة عالية الجودة غرفة أقل المصعد. وتوضع بها ماكينة المصعد و الكنترول ومنظم السرعة. ولا تحتاج سحب يدوي او دفع عند وصول المصعد، وهذا النوع من الابواب ينقسم إلى : يتم تركيب جهاز زياده الحموله لتجنب ارتفاع.
مصاعد غرفة الآلة المتقدمة بوابة الإطار المصاعد المنزلية للمنازل السكنية
Source: www.elevatorfactory.net
منظم السرعة الذي يعمل علي وقف تشغيل المصعد في حالة زيادة سرعة الكابينة عن السرعة المبرمجة للمصعد ( فرملة طوارىء). انا مهندس كهرباء اسألني ما تشاء عن مجال المصاعد اعطال او. تتغير فتحة الباب الصافية في كان كان الباب.
العملاقة من نوع المصعد OTLM2000 هانغتشو Otse مصعد مصعد المحدودة
Source: www.elevatorfactory.net
من المهم تنفيذ السقف اعلى اخر باب للمصعد بارتفاع لا يقل عن 4 مترعن ارضيه اخر دور يقف به المصعد.وهذا السقف يكون هو ارضيه غرفه المكينه سواء كان هذا المصعد فى بئر منفصل او فى بئر السلم وذلك لاهميه هذا الارتفاع فيما يسمى. الموقع الهيكلي لغرفة المحرك نفسها. شيه مصعد هي واحدة من أكثر مهنية آلة غرفة أقل المصاعد المصنعين والموردين في الصين، قوية في المزايا التقنية والخبراء عديمي الخبرة غنية.
قوية محرك المصعد OTQ2000 هانغتشو Otse مصعد مصعد المحدودة
Source: ar.aoyama-elevator.net
غرفة الماكينات أعلى بئر المصعد توضع بها ماكينة المصعد + الكنترول + منظم السرعة. شيه مصعد هي واحدة من أكثر مهنية آلة غرفة أقل المصاعد المصنعين والموردين في الصين، قوية في المزايا التقنية والخبراء عديمي الخبرة غنية. نشر ثقافة البناء بطريقة صحيحة و مبسطة وفقا لكود البناء السعودي.لطلب نسخة من كتاب اخطاء في البناء للطلب عبر.
حار بيع المنزل سكني النوادل البكم المصعد مع CE المعتمدة الموردين
Source: ar.fujistarelevators.com
- إرتفاع الغرفة (ho) لا يقل عن 200 سم. ادوات لارتفاع درجة الحرارة في غرفة المصعد. وتوضع بها ماكينة المصعد و الكنترول ومنظم السرعة.
الصين رخيصة المصعد البهية فيلا مصعد المصنعين والموردينالمصنع مباشرة
Source: arabic.sunnyelevator.com
ارتفاع سقف المصعد عن اعلى سطح من المهم تنفيذ السقف اعلى اخر باب للمصعد بارتفاع لا يقل عن 4 مترعن ارضيه اخر دور يقف به المصعد.وهذا السقف يكون هو ارضيه غرفه المكينه سواء كان هذا المصعد فى بئر منفصل او فى بئر السلم وذلك لاهميه هذا الارتفاع فيما يسمى. غرفة الماكينات أعلى بئر المصعد توضع بها ماكينة المصعد + الكنترول + منظم السرعة.
مصعد غرفة ماكينة مصعد أقل مصعد مع أرضية من الصلب لبناء
Source: ibrahim0.blogspot.com
وتوضع بها ماكينة المصعد و الكنترول ومنظم السرعة. جميع مقاسات ال اي 400 تأتي بحمولة 400 كغم أو 500 كغم. اريد ان اعرف طريقة توصيل اربع سبوتات 220 فولت مع بعضها ضمن سقف غرفة المصعد و لك.
مدونة إبراهيم نصائح في المصعد
Source: hawamer.com
ارتفاع فتحات الأبواب /220/سم من مستوى سطح البلاط. اما بخصور بئر المصعد فيعتمد عمقة على سرعة عربة المصعد ويزداد عمق بئر المصعد كلما. المصعد elevator, lift حجرة تستخدم لنقل الأشخاص والأحمال المختلفة شاقولياً ما بين منسوب من الارتفاع ومنسوب آخر، كنقل الأشخاص في المباني السكنية الطابقية ما بين طابق وآخر.
المصاعد. والأمور المطلوبة لها وأنواعها..... الصفحة 4 هوامير
Source: www.safe-lifts.com
المصعد elevator, lift حجرة تستخدم لنقل الأشخاص والأحمال المختلفة شاقولياً ما بين منسوب من الارتفاع ومنسوب آخر، كنقل الأشخاص في المباني السكنية الطابقية ما بين طابق وآخر. تختلف مقاسات المصاعد من مبنى لآخر ويقوم المصمم بتحديد مقاسات بئر المصعد والتصميم المناسب له بناءً على عدة أسس، تشمل التالي: شيه مصعد هي واحدة من أكثر مهنية آلة غرفة أقل المصاعد المصنعين والموردين في الصين، قوية في المزايا التقنية والخبراء عديمي الخبرة غنية.
الصين مخصص المصعد آلة الجر موجهة والمصنعين والموردين سعر المصنع
Source: www.star-elevators.com
اريد ان اعرف طريقة توصيل اربع سبوتات 220 فولت مع بعضها ضمن سقف غرفة المصعد و لك. من المهم تنفيذ السقف اعلى اخر باب للمصعد بارتفاع لا يقل عن 4 مترعن ارضيه اخر دور يقف به المصعد.وهذا السقف يكون هو ارضيه غرفه المكينه سواء كان هذا المصعد فى بئر منفصل او فى بئر السلم وذلك لاهميه هذا الارتفاع فيما يسمى. ادوات لارتفاع درجة الحرارة في غرفة المصعد.
نبذة عن المصاعد مصاعد ستار الهندسيه
Source: ar.aoyama-elevator.net
تختلف مقاسات المصاعد من مبنى لآخر ويقوم المصمم بتحديد مقاسات بئر المصعد والتصميم المناسب له بناءً على عدة أسس، تشمل التالي: جميع المقاسات تتسع لكرسي بعجلات بأستثناء الاول. من المهم تنفيذ السقف اعلى اخر باب للمصعد بارتفاع لا يقل عن 4 مترعن ارضيه اخر دور يقف به المصعد.وهذا السقف يكون هو ارضيه غرفه المكينه سواء كان هذا المصعد فى بئر منفصل او فى بئر السلم وذلك لاهميه هذا الارتفاع فيما يسمى.
حار بيع المنزل سكني النوادل البكم المصعد مع CE المعتمدة الموردين
Source: www.elevatorfactory.net
غرفة الماكينات تتواجد أعلى بئر المصعد. تقع معظم غرف المصعد في الطابق العلوي من المبنى ، وبعض غرف الآلة عبارة عن غرفة خاصة مرتفعة على سطح المبنى. ارتفاع فتحات الأبواب /220/سم من مستوى سطح البلاط.
العملاقة من نوع المصعد OTLM4000 هانغتشو Otse مصعد مصعد المحدودة
Source: www.pnghunt.com
جميع مقاسات ال اي 400 تأتي بحمولة 400 كغم أو 500 كغم. ارتفاع فتحات الأبواب /220/سم من مستوى سطح البلاط. الموقع الهيكلي لغرفة المحرك نفسها.
المصعد الرمادي والأسود التوضيح ، المصعد PNG
Source: sa.chrkat.com
اريد ان اعرف طريقة توصيل اربع سبوتات 220 فولت مع بعضها ضمن سقف غرفة المصعد و لك. إيصال كبل كهربائي رباعي (16 أو 25) مم² من العداد، إلى غرفة المحركات، والمقاس متعلق بالبعد بين العداد والغرفة، وبقيمة جهد الشبكة. اختيار المصعد لابد أن يمر.
توريد وتركيب مصاعد داخلية فى المملكة العربية السعودية دليل شركات السعودية
Source: www.elevatorfactory.net
تتغير فتحة الباب الصافية في كان كان الباب. غرفة الماكينات أعلى بئر المصعد توضع بها ماكينة المصعد + الكنترول + منظم السرعة. اريد ان اعرف طريقة توصيل اربع سبوتات 220 فولت مع بعضها ضمن سقف غرفة المصعد و لك.
قوية محرك المصعد OTQ3000 هانغتشو Otse مصعد مصعد المحدودة
Source: ar.aoyama-elevator.net
سعودي فرست أفضل شركة مصاعد تقدم خدمات. المصعد يقوم بدفع المصعد لأعلى، ويمكن استخدامها للمباني منخفضة الارتفاع من 2 إلى 8 طوابق والانتقال بسرعة قصوى تبلغ 200 قدم في الدقيقة. 1) إرتفاع الغرفة (ho) لا يقل عن 200 سم.
سلالم ممر 1200MM عرض متحرك ممشى مركز تجاري يميل مطار مسافر ومصنعين
Source: royallift-ksa.com
انا مهندس كهرباء اسألني ما تشاء عن مجال المصاعد اعطال او. نشر ثقافة البناء بطريقة صحيحة و مبسطة وفقا لكود البناء السعودي.لطلب نسخة من كتاب اخطاء في البناء للطلب عبر. ارتفاع فتحات الأبواب /220/سم من مستوى سطح البلاط.
مصاعد رويال
Source: www.slideserve.com
المصعد يقوم بدفع المصعد لأعلى، ويمكن استخدامها للمباني منخفضة الارتفاع من 2 إلى 8 طوابق والانتقال بسرعة قصوى تبلغ 200 قدم في الدقيقة. تختلف مقاسات المصاعد من مبنى لآخر ويقوم المصمم بتحديد مقاسات بئر المصعد والتصميم المناسب له بناءً على عدة أسس، تشمل التالي: ارتفاع فتحات الأبواب /220/سم من مستوى سطح البلاط.
PPT المصاعد 420050009 اعداد الطالبين مؤيد اسماعيل المسحال PowerPoint
Source: cibeslift.ae
تقع معظم غرف المصعد في الطابق العلوي من المبنى ، وبعض غرف الآلة عبارة عن غرفة خاصة مرتفعة على سطح المبنى. ارتفاع الغرفة ho ) ) لا يقل عن 200 سم مراعاة التهوية التامة مساحة كافية لضمان توزيع سليم. انا مهندس كهرباء اسألني ما تشاء عن مجال المصاعد اعطال او.
مصاعد الكابينة مصاعد المنصة المنزلية تصميم اسكندنافي
Source: rehla.me
الحد الأدنى لحجم المصعد المنزلي الهيدروليكي الشائع لديه قدرة تحمل 400 كجم ، وحجم داخلي 800 * 1250 مم ، ومتطلبات مساحة. ولا تحتاج سحب يدوي او دفع عند وصول المصعد، وهذا النوع من الابواب ينقسم إلى : 1) إرتفاع الغرفة (ho) لا يقل عن 200 سم.
معلومة في التنفيذ عن المصعد الهيدروليكى نتحدث Rehla.me حسن فؤاد
Source: www.elevatorfactory.net
نشر ثقافة البناء بطريقة صحيحة و مبسطة وفقا لكود البناء السعودي.لطلب نسخة من كتاب اخطاء في البناء للطلب عبر. ارتفاع الغرفة ho ) ) لا يقل عن 200 سم مراعاة التهوية التامة مساحة كافية لضمان توزيع سليم. من المهم تنفيذ السقف اعلى اخر باب للمصعد بارتفاع لا يقل عن 4 مترعن ارضيه اخر دور يقف به المصعد.وهذا السقف يكون هو ارضيه غرفه المكينه سواء كان هذا المصعد فى بئر منفصل او فى بئر السلم وذلك لاهميه هذا الارتفاع فيما يسمى.
قوية محرك المصعد OTQ3000 هانغتشو Otse مصعد مصعد المحدودة
Source: al-ain.com
غرفة الماكينات أعلى بئر المصعد توضع بها ماكينة المصعد + الكنترول + منظم السرعة. وهي الابواب التي تفتح مباشرة عند طلبها اوتوماتيكيا. ادوات لارتفاع درجة الحرارة في غرفة المصعد.
مصعد أفاتار الصيني.. تجربة مخيفة على ارتفاع ٣٣٠ مترا
Source: arabic.elevator-component.com
أنواع مختلفة من المصاعد المنزلية الهيدروليكية لها أحجام مختلفة وأوزان مختلفة. ارتفاع الغرفة ho ) ) لا يقل عن 200 سم مراعاة التهوية التامة مساحة كافية لضمان توزيع سليم. سعودي فرست أفضل شركة مصاعد تقدم خدمات.
مصعد غرفة MRL بدون مصعد مع أرضية صفيحة فولاذية للمبنى
Source: hawamer.com
ارتفاع فتحات الأبواب /220/سم من مستوى سطح البلاط. من المهم تنفيذ السقف اعلى اخر باب للمصعد بارتفاع لا يقل عن 4 مترعن ارضيه اخر دور يقف به المصعد.وهذا السقف يكون هو ارضيه غرفه المكينه سواء كان هذا المصعد فى بئر منفصل او فى بئر السلم وذلك لاهميه هذا الارتفاع فيما يسمى. الحد الأدنى لحجم المصعد المنزلي الهيدروليكي الشائع لديه قدرة تحمل 400 كجم ، وحجم داخلي 800 * 1250 مم ، ومتطلبات مساحة.
المصاعد. والأمور المطلوبة لها وأنواعها..... هوامير البورصة
Source: hawamer.com
ادوات لارتفاع درجة الحرارة في غرفة المصعد. أنواع مختلفة من المصاعد المنزلية الهيدروليكية لها أحجام مختلفة وأوزان مختلفة. اختيار المصعد لابد أن يمر.
المصاعد. والأمور المطلوبة لها وأنواعها..... الصفحة 4 هوامير
Source: cibeslift.ae
شيه مصعد هي واحدة من أكثر مهنية آلة غرفة أقل المصاعد المصنعين والموردين في الصين، قوية في المزايا التقنية والخبراء عديمي الخبرة غنية. نشر ثقافة البناء بطريقة صحيحة و مبسطة وفقا لكود البناء السعودي.لطلب نسخة من كتاب اخطاء في البناء للطلب عبر. اما بخصور بئر المصعد فيعتمد عمقة على سرعة عربة المصعد ويزداد عمق بئر المصعد كلما.
مصاعد الكابينة مصاعد المنصة المنزلية تصميم اسكندنافي
Source: ar.aoyama-elevator.net
جميع المقاسات تتسع لكرسي بعجلات بأستثناء الاول. ادوات لارتفاع درجة الحرارة في غرفة المصعد. اما بخصور بئر المصعد فيعتمد عمقة على سرعة عربة المصعد ويزداد عمق بئر المصعد كلما.
حار بيع المنزل سكني النوادل البكم المصعد مع CE المعتمدة الموردين
Source: ibrahim0.blogspot.com
المصعد يقوم بدفع المصعد لأعلى، ويمكن استخدامها للمباني منخفضة الارتفاع من 2 إلى 8 طوابق والانتقال بسرعة قصوى تبلغ 200 قدم في الدقيقة. إيصال كبل كهربائي رباعي (16 أو 25) مم² من العداد، إلى غرفة المحركات، والمقاس متعلق بالبعد بين العداد والغرفة، وبقيمة جهد الشبكة. نشر ثقافة البناء بطريقة صحيحة و مبسطة وفقا لكود البناء السعودي.لطلب نسخة من كتاب اخطاء في البناء للطلب عبر.
مدونة إبراهيم نصائح في المصعد
Source: www.modayangroup.com
إيصال كبل كهربائي رباعي (16 أو 25) مم² من العداد، إلى غرفة المحركات، والمقاس متعلق بالبعد بين العداد والغرفة، وبقيمة جهد الشبكة. يتم تركيب جهاز زياده الحموله لتجنب ارتفاع. الحد الأدنى لحجم المصعد المنزلي الهيدروليكي الشائع لديه قدرة تحمل 400 كجم ، وحجم داخلي 800 * 1250 مم ، ومتطلبات مساحة.
ما هي الابعاد الانشائية لبئر المصعد مصاعد المضيان تساعدك بذلك
Source: arabic.fujipre.com
تقع معظم غرف المصعد في الطابق العلوي من المبنى ، وبعض غرف الآلة عبارة عن غرفة خاصة مرتفعة على سطح المبنى. المصعد elevator, lift حجرة تستخدم لنقل الأشخاص والأحمال المختلفة شاقولياً ما بين منسوب من الارتفاع ومنسوب آخر، كنقل الأشخاص في المباني السكنية الطابقية ما بين طابق وآخر. أنواع مختلفة من المصاعد المنزلية الهيدروليكية لها أحجام مختلفة وأوزان مختلفة.
مصاعد فوجي الزجاجية السكنية ، المصاعد الشخصية الصغيرة القابلة للتخصيص
Source: arabic.sunnyelevator.com
نشر ثقافة البناء بطريقة صحيحة و مبسطة وفقا لكود البناء السعودي.لطلب نسخة من كتاب اخطاء في البناء للطلب عبر. منظم السرعة الذي يعمل علي وقف تشغيل المصعد في حالة زيادة سرعة الكابينة عن السرعة المبرمجة للمصعد ( فرملة طوارىء). ارتفاع الغرفة ho ) ) لا يقل عن 200 سم مراعاة التهوية التامة مساحة كافية لضمان توزيع سليم.
مصاعد غرفة الآلة المتقدمة بوابة الإطار المصاعد المنزلية للمنازل السكنية
Source: www.pnghunt.com
وتوضع بها ماكينة المصعد و الكنترول ومنظم السرعة. اريد ان اعرف طريقة توصيل اربع سبوتات 220 فولت مع بعضها ضمن سقف غرفة المصعد و لك. غرفة الماكينات أعلى بئر المصعد توضع بها ماكينة المصعد + الكنترول + منظم السرعة.
لافتات المصاعد ، مصعد الكمبيوتر أيقونات شقة غرفة سوهان المطورين
Source: arabic.elevator-component.com
يتم تركيب جهاز زياده الحموله لتجنب ارتفاع. انا مهندس كهرباء اسألني ما تشاء عن مجال المصاعد اعطال او. المصعد elevator, lift حجرة تستخدم لنقل الأشخاص والأحمال المختلفة شاقولياً ما بين منسوب من الارتفاع ومنسوب آخر، كنقل الأشخاص في المباني السكنية الطابقية ما بين طابق وآخر.
غرفة صغيرة آلة مصعد / مصعد ومستقر الركاب المصعد والمصاعد
Source: rehla.me
المصعد يقوم بدفع المصعد لأعلى، ويمكن استخدامها للمباني منخفضة الارتفاع من 2 إلى 8 طوابق والانتقال بسرعة قصوى تبلغ 200 قدم في الدقيقة. شيه مصعد هي واحدة من أكثر مهنية آلة غرفة أقل المصاعد المصنعين والموردين في الصين، قوية في المزايا التقنية والخبراء عديمي الخبرة غنية. جميع مقاسات ال اي 400 تأتي بحمولة 400 كغم أو 500 كغم.
معلومة في التنفيذ عن المصعد الهيدروليكى نتحدث Rehla.me حسن فؤاد
Source: www.modayangroup.com
غرفة الماكينات تتواجد أعلى بئر المصعد. أن المصاعد الحديثة بها وسائل أمان وهي : تتغير فتحة الباب الصافية في كان كان الباب.
ما هي الابعاد الانشائية لبئر المصعد مصاعد المضيان تساعدك بذلك
Source: ibrahim0.blogspot.com
مرحبا بكم في الاتصال بنا للحصول على آلة عالية الجودة غرفة أقل المصعد. اختيار المصعد لابد أن يمر. وهي الابواب التي تفتح مباشرة عند طلبها اوتوماتيكيا.